Skip to main content

Demolizione e Ricostruzione integrale dell’Asilo Nido

  • Dettagli di progetto
  • Cliente
    Comune di Vercelli – Gara Pubblica
  • Ubicazione
    Comune di Vercelli (VC), Piemonte
  • Anno
    2025
  • Servizi
    Progettazione esecutiva, Direzione lavori
  • Superficie
    900 mq
  • Budget
    € 2.000.000,00
  • Stato
    Concluso

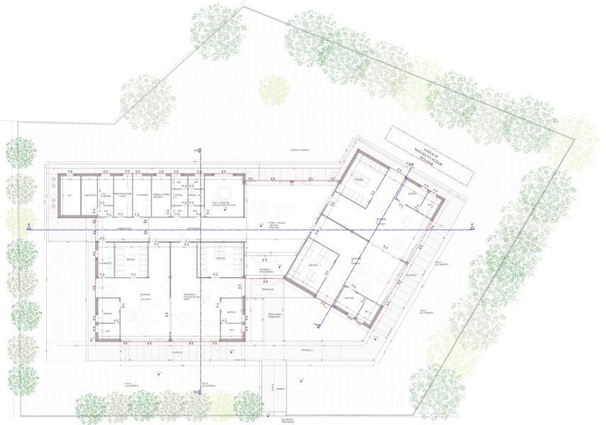
Il progetto prevede la demolizione e ricostruzione di un asilo nido a Vercelli, con l’obiettivo di ridefinire gli spazi dell’apprendimento attraverso un’architettura sostenibile e inclusiva. La nuova struttura, interamente in legno e a un solo livello, si caratterizza per ambienti aperti e luminosi, concepiti per favorire l’interazione e il benessere dei piccoli utenti. L’organizzazione interna privilegia la flessibilità, con aule integrate a spazi comuni che stimolano la socialità e l’esplorazione. L’esterno si configura come un’estensione naturale dell’insegnamento, con aree gioco e aule all’aperto che rafforzano il legame con l’ambiente. La copertura, con le sue inclinazioni variabili e volumi geometrici, dona un’identità dinamica alla struttura, filtrando la luce naturale in modo calibrato. L’impiego di sistemi prefabbricati e tecnologie avanzate garantisce massima efficienza energetica, portando l’edificio a standard nZEB. Il nuovo asilo si propone come un modello di sostenibilità e innovazione educativa, in grado di coniugare qualità architettonica e prestazioni ambientali.